АРХАНГЕЛЬСКАЯ СТРОИТЕЛЬНАЯ КОМПАНИЯ СЕВЕРНОЕ ЗОДЧЕСТВО
крупнейшая в России в области деревянного ручного домостроения и признана лучшей компанией по качеству строительства независимыми российскими и зарубежными экспертами.
Наш телефон: +7 921 490 37 37
На главную    Наши контакты    Поиск

НАШИ ПРОЕКТЫ

ПРОЕКТ 3-142


ПРОЕКТ 3-182


ПРОЕКТ 3-185


ПРОЕКТ 3-187


ПРОЕКТ 3-123


ПОСЛЕДНИЕ ПРОЕКТЫ

ПРОЕКТ 3-142


ПРОЕКТ 3-182


ПРОЕКТ 3-185


ПРОЕКТ 3-187


ПРОЕКТ 3-123


СЛУЧАЙНЫЕ ПРОЕКТЫ

ПРОЕКТ 3-124


ПРОЕКТ 3-171


ПРОЕКТ 3-83


ПРОЕКТ 5-02


ПРОЕКТ 3-102


ПРОЕКТ 3-260


ПРОЕКТ 3-115


ПРОЕКТ 3-179


ПРОЕКТ 3-263


ПРОЕКТ 3-54


ПРОЕКТ 2-03


ПРОЕКТ 3-60


ПРОЕКТ 3-225


ПРОЕКТ 3-69


ПРОЕКТ 3-221
 
ПАПКА
для хранения проектов

Проектов в папке: 0



ИНФОРМАЦИЯ

Стоимость домов в комплектации "Сруб" (дом студия - один этаж рубленный, второй мансардный) от 89 EUR за 1 кв.м. При выборе дома просим учитывать, что стоимость конструкции увеличивается, если увеличивается количество материала в самом доме.

Стоимость дома зависит от количества рубленных внутренних перегородок, диаметра бревна, высоты рубленных стен, сложности конструкции.  

ПРОЕКТ 3-114

ОПИСАНИЕ ПРОЕКТА
Дом на 3-5 чел
1 этаж
С мансардой

Общая площадь*
156 м²


Рейтинг: (4.30)

ВСЕ ФОТОГРАФИИ ПРОЕКТА

Проекты скачать!         комплектация!!!     сборка домов в любом регионе России  УВЕЛИЧИТЬ ИЛИ УМЕНЬШИТЬ ПЛОЩАДЬ ЭТОГО ДОМА, ПРОСТО! 

ЭТОТ ДОМ МОЖНО ПОСТРОИТЬ В ЛЮБОЙ СТРАНЕ!!!        

При заказе дома мы возвратим Вам всю сумму потраченную за проект!!!

Данный проект запрещается копировать, изменять и размещать на других сайтах, использовать в коммерческий целях, а так же использовать в частной застройке без разрешения компании в любой его модификации. Все проекты защищены!

Уже более 300 проектов на сайте

Мы производим самое безопасное жилье для человека, заботьтесь о своем здоровье вместе с нами.  

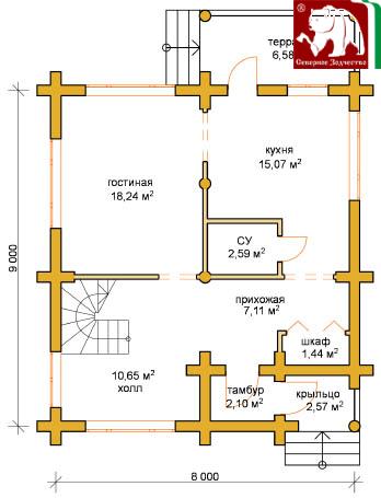
План 1 этажа
ПРОЕКТ 3-114 - План 1 этажа
План мансарды
ПРОЕКТ 3-114 - План мансарды
ОЦЕНИТЕ ПРОЕКТ
ОТЛИЧНО!
ХОРОШО
СРЕДНЕ
ПЛОХО
ОЧЕНЬ ПЛОХО
ОЦЕНИТЬ
Выскажите свою идею компании "Северное Зодчество"
Я предлагаю вам...
Отправить идею
Благодарим Вас!
Приняв участие в опросе, Вы внесли личный вклад в развитие
Российской производственной компании
Уже высказано идей:
1
Куда убрали пение птиц? Раньше было лучше, когда на сайте пели птицы.
Добавить архитектуру разных стран, например английская, норвежская и т.п.
Добавить осмотр помещений изнутри, для визуального представления пространства.
Добавить малые архитектурные формы: беседки, лавочки, у вас их мало.
Неплохо бы фотографии, присылаемые нам, клиентам, по фотоотчету, размещать на сайте по датам и заказчикам.
Задайте вопрос менеджеру.
Простая форма для быстрой отправки
E-mail или телефон для обратного ответа:
Отправить
Благодарим за Ваш запрос!
ООО Международная строительная компания "Северное Зодчество"
ПРЕСС-СЛУЖБА.
Информация для Заказчиков 14.02.2018Информация для Заказчиков

По многочисленным просьбам наших потенциальных Заказчиков, для экономии их времени, мы начинаем выполнять расчёты наших проектов в разной степени полноты комплекта. Выкладывать одну стоимость «от 199000 рублей» малоинформативно и мы постарались раскрыть подробно, что именно Заказчик получит в той или иной комплектации. Минимальная комплектация «СРУБ» включает в себя изготовление бревенчатой части сруба. Для наших клиентов мы предлагаем возможность оставить сруб на некоторое время на ответственное хранение. Например, в тех случаях, когда погодные условия не позволяют оперативно изготовить фундамент. «СРУБ С МОНТАЖЕМ» рекомендуется тем, кто планирует качественную сборку сруба профессиональными мастерами, в то же время, имея свои возможности по возведению стропильной системы. Комплектация «СРУБ ПОД УСАДКУ» включает в себя стропильную систему, т.е. Ваш сруб будет закрыт от осадков. Всегда можно пересмотреть комплектацию по желанию Заказчика и выполнить поставку тех или иных материалов для монтажа силами Заказчика. Например, в тех случаях, когда обрешетка не помещается по массе в одну из еврофур. Не везти же три кубометра досок через пол страны отдельной машиной. Мы были бы очень рады, если в качестве обратной связи могли бы получать Ваши пожелания по комплектациям на эту электронную почту: makarov@arkhangel.ru .Мы будем делать их более удобными для Вас.     «СРУБ»: 1.       Отборная сосна диаметром 220-240мм 2.       Острожка рубанком 3.       Русская чаша с выпуском 4.       Лунный паз, выборка теслом 5.       Антисептирование пазов и чаш «СРУБ С МОНТАЖЕМ»: 6.       Маркировка сруба 7.       Разборка и пакетирование 8.       Погрузка на поданный транспорт 9.       Сборка сруба на готовом фундаменте 10.   Врезка балок перекрытий 100х200мм 11.   Межвенцовый утеплитель в рулонах 8-10мм 12.   Нагели «СРУБ ПОД УСАДКУ»: 13.   Устройство стропильной  системы  из доски 50мм 14.   Обрешетка «дюймовкой» 15.   Гидроизоляция рубероидом 16.   Антисептирование «ДОМ ПОД ОТДЕЛКУ»: 17.   Настил кровли по выбору Заказчика 18.   Устройство скользящих обсадных  коробок  под окна и двери 19.   Устройство черного  пола  

Баня за 30 дней 24.01.2018Баня за 30 дней

Пока на площадке закладываются срубы нового сезона, пока они не набрали пригодной для фотографий высоты, поделимся одной симпатичной банькой, которую было необходимо возвести не только в достаточно сжатые сроки, но и в определенных условиях, усложняющих процесс строительства. Начнем с того, что на месте, где должна была встать новая банька, находилась старая, не соответствующая требованиям нового владельца участка. Завалена она была со всех сторон несколькими камазами старых сырых дров, так как о вентиляции в поленницах бывший владелец представления не имел. Проехать на грузовом транспорте до этой баньки было невозможно, так как участок был полностью благоустроен, а иных подъездных путей к месту застройки не имелось из за рельефа местности, окружающего участок. Расстояние от точки выгрузки до точки застройки составило порядка 100 метров. Масса одного бревна 200+ килограмм. Вишенкой на торте стал срок исполнения договора, ограниченный тридцатью календарными днями. И, тем не менее, у нас всё получилось. Результатом стало данное видео. https://youtu.be/gFQ-LEKmmzQ

Полностью завершен коттеджный посёлок 13.12.2017Полностью завершен коттеджный посёлок "Северная Швейцария"

Все работы в коттеджном посёлке "Северная Швейцария" завершены. Мы добились цели, поставленной несколько лет назад. Все коттеджи выполнены в единой архитектурной композиции в отличие от посёлков в центральных регионах, где поселки возводятся из разных материалов и в смешанной архитектуре. В коттеджном поселке «Северная Швейцария» все дома срублены в едином стиле из бревна архангельской сосны, исключительно из строганого бревна ручной обработки, но при этом абсолютно все дома имеют различную архитектуру.   "Северная Швейцария" стала нашей визитной карточкой, примером того, что мы не только говорим про дома под ключ, но и реально их производим. На посёлке нет ни одного проекта реализованного дважды. Все дома уникальны. В то же время нет ни одного проекта из типовых, так как мы идем навстречу пожеланиям каждого клиента и выполняем индивидуальное проектирование. Все прибывающий к нам гости-заказчики из иных регионов имеют возможность посетить данный посёлок, чтобы лично удостовериться в наших возможностях. В разделе "контакты" к Вашим услугам наши сотрудники, которые помогут организовать встречу и экскурсию.

Северный лес и никакой подделки! 04.02.2013Северный лес и никакой подделки!

Северный лес и никакой подделки!  Мы находимся в самом Архангельске, и дома мы рубим из настоящей Архангельской сосны! Это чудо природы произрастает вблизи белого моря.  Опасения людей действительно оправданы, ведь производители домов, практикующие строительство на участке клиента, завозят лес из Вологды, на лесовозах с архангельскими номерами. Вот до чего дошла подделка. Вологодский лес дешевле, и по качеству рядом не стоит с северным, ведь не зря царь Петр-1 строил тут свои корабли. Отличить простому человеку, откуда вырублен лес, практически невозможно.   Феномен леса - аномальный климат вблизи белого моря, очень мучает жителей города непогодой, ведь в Архангельске только шестьдесят дней в году бывает солнце, остальные дни пасмурно, идут осадки, а зимние сильные морозы просто замораживают соленое море, которое становится белым.  Но чем дальше от Архангельска, тем климат мягче и теплее. Например, уже в трехстах километрах от Архангельска, можно почувствовать себя на юге, а в самом Архангельске погоды может и не быть месяцами. По этому, не весь архангельский лес сам по себе уникален, ведь архангельская область по площади равна трем Франциям, и там есть крайний север с полярными ночами, вечная мерзлота и белые медведи, и юг, где растут яблоки. 

Посещаемость вебсайта компании превысило 30 миллионов человек 19.04.2012Посещаемость вебсайта компании превысило 30 миллионов человек

    Ежедневно сайт посещают более 15000 человек, иногда этот показатель бывает более 30000 человек в сутки, средняя посещаемость 2 человека в секунду. Программисты компании утверждают, хоть сайт содержит много визуального материала и для его стабильной работы необходимо более эффективное программное обеспечение, чем для новостных сайтов, тем не менее мощность серверов на данное время рассчитано и может выдержать посещаемость до 10 человек в секунду, поэтому, модернизация веб ресурса с учетом будущего увеличения посещаемости в ближайшие два года не потребуется. Напомним, сайт ежедневно посещают из 50 стран мира, количество клиентов компании постоянно растёт. Наиболее посещаемые страны Россия и Украина, самые посещаемые города Москва и Санкт- Петербург.

Новые запросы покупателей. Ваш запрос появится, если Вы использовали нижеприведенную форму запроса.
Вильгельм Кауц [Ашаффенбург/Германия]
21.09.2017
Интересует цена Проекта 3.187 И ещё, есть ли шансы доставки в Германию С уважением Вильгельм Кауц
Костадин Кесаров [Смолян/Болгария]
13.09.2017
Привет, сколько обойдется проекту 5-11 с транспортом и установкой в город Смолян, Болгария. Спасибо.
Костадин Танчев [Сандански/Болгария]
13.09.2017
Приветствую. У меня есть имущество площадью 12 340 квадратных метров, которое расположено на крупнейшем зимнем курорте на Балканах - Пампорово-Чепеларе (Болгария). У вас есть интерес к совместному бизнесу - путем строительства 20 деревянных домов.12 быть вашей собственностью, включая землю. Его можно продать или арендовать.Дальнейшее согласование условий.
Анна [Архангельск/Россия]
28.08.2017
Здравствуйте, скажите пожалуйста сколько стоит сруб проекта 1-1?
Анна [Архангельск/Россия]
28.08.2017
Здравствуйте, подскажите пожалуйста стоимость проекта под ключ 3-191? И остоимость готового сруба без сборки?
Ирина [Екатеринбург/Россия]
09.08.2017
Подскажите пожалуйста, стоимость дома по проекту 3-185. Заранее благодарю! Ответ, пожалуйста на эл. почту.
Дмитрий [Чудово/Россия]
29.07.2017
Подскажите пожалуйста примерную стоимость дома 3-184 с доставкой и сборкой
никита [красноярск/россия]
26.07.2017
Какова цена домокомплекта этой бани?
Marshall Blankenship [Anchorage]
25.07.2017
Hello, I am interested in 8 smaller cabins (perhaps 3-182) a chapel, bathouse and large main lodge for a development on the former site of a Russian-American Fur trading outpost in Alaska. Would love them to reflect Russian architecture and be very Russian as part of the charm of the development. Perhaps a barn and a gazebo as well. Would like to know a rough estimate in dollars delivered to Kodiak, Alaska Thanks
Олег [Правдинск/Россия]
18.07.2017
ПРОЕКТ 3-284 - стоимость под ключ в Калининградской области
Александр [Вилючинск/Россия]
17.07.2017
Здравствуйте, интересует проект дома 3-224. Подскажите цену комплекта дома.

ЗНАЕТЕ ЛИ ВЫ ЧТО БОЛЬШИНСТВО ЛЮДЕЙ В РОССИИ ЗАКАЗЫВАЮТ ПРОЕКТЫ ИМЕННО В НАШЕЙ КОМПАНИИ?  


Вы можете связаться с нами любым удобным вам образом.

Здесь вы можете задать нам вопрос по данному проекту
или отправить свое мнение
You can post a comment or ask a question about this project 
Ваше имя (Name) *E-mail (обязателен для вопроса)
Страна (Country) *Город (City) *
Заказать обратный звонок менеджера
Текст (не более 250 символов) (Text)
Какие изменения Вы бы сделали в этом проекте? (не более 500 символов)
(Is there anything you would like to change in this project?)

 *Ответы на сайте не публикуются, на все вопросы ответы присылаем индивидуально.

ЗАКАЗАТЬ ПРОЕКТ ОЧЕНЬ ПРОСТО! ДОСТАВКА ПРОЕКТА В ЛЮБУЮ СТРАНУ КУРЬЕРОМ! 

Возможен перевод проекта на другие языки. Просто отправьте форму со своими пожеланиями.

21.10.2013АлександрПермь
Россия
Здравствуйте, подскажите пожалуйста, сколько будет стоить сруб (проект 3-144) бревно диаметром 28-30см. И доставка в Пермь.
21.05.2013Олег
Россия
Стоимость ПРОЕКТ 3-114?
07.01.2013Токарев АлександрИжевск
Россия
Укажите стоимость проекта 3-114, строительства его "под ключ" с доставкой в Удмуртию (г. Ижевск), сроки постройки.
05.11.2012НатальяТюмень
Россия
Пожалуйста, ответьте, какова будет стоимость проекта 3-114 под ключ в г. Тюмени
01.03.2012ОльгаВоронеж
Россия
Сколько будет стоить проект 3-114 с доставкой до г. Воронежа (Воронежской обл.) и установкой. Должен ли стоять фундамент и какого размера?
27.04.2011ДмитрийХотьково
Россия
Добрый день, сколько стоит ПРОЕКТ 3-114 под ключ
27.02.2011СергейТольятти
Россия
Здравствуйте. Очень нужно увидеть смету на дом по проекту 3-114 на слудующих условиях. 1. Доставка дома в с. Большое Алдаркино Самарской области. 2. Сборка на месте вашей бригадой.
15.02.2011МайяКалининград
Россия
А еще по проекту №3-114 можно описание
03.02.2011ЭльмираПермь
Россия
Здравствуйте. Хотелось бы знать стоимость дома проект 3-114, по частям (сруб, крыша, фундамент, доставка в Пермь, отделка и т.д. желательно подробно)? Возможно ли собрать этот дом самому, без привлечения ваших специалистов? Сколько будет стоить сборка вашими специалистами?
31.01.2011NataliТемиртау
Казахстан
Здравствуйте! Хотим уточнить цену готового дода под ключ с доставкой.
04.08.2010ДмитрийНовокузнецк
Россия
Здравствуйте. Хотелось бы знать стоимость этого дома по частям (сруб, крыша, фундамент, доставка в Новокузнецк, отделка и т.д. желательно подробно)? Возможно ли собрать этот дом самому, без привлечения ваших специалистов?
29.01.2010АлексейПенза
Россия
Сколько будет стоить с доставкой в Пензу ПРОЕКТ 3-114 , что входит в комплект дома? Сколько будет стоить сборка вашими специалистами?
22.12.2009ИринаАрхангельск
Россия
Здравствуйте. Сколько будет стоить дом проекта 3-114 со сборкой и что входит в комплект?
14.08.2009СергейМосква
Россия
Меня интересует сколько будет стоить постройка с фундаментом под ключ в Тверской облости
03.06.2009маринаЧелябинск
Россия
есть ли для проекта 3-114 в каталоге бесплатные проекты - проект и какой его номер
03.06.2009МаринаЧелябинск
Россия
Здравствуйте, скажите пожалуйста какова цена дома проект 3-114 без внутренних перегородок(только сруб и крыша)со сборкой на данный момент, сколько будет стоить доставка в Челябинск и соответственно монтаж? фундамент мой. Спасибо!
17.05.2009ВячеславН.Новгород
Россия
Здравствуйте. Хотелось бы знать стоимость этого дома по частям (сруб, крыша, фундамент, доставка в Н.Новгород, отделка и т.д. желательно подробно)? Возможно ли собрать этот дом самому, без привлечения ваших специалистов? Возможна ли корректировка внутренних перерегородок?
01.05.2009АлександрОренбург
Россия
Здравствуйте, скажите пожалуйста какова цена дома со сборкой на данный момент, сколько будет стоить доставка в Оренбург и соответственно монтаж? фундамент мой.
30.03.2009АлексейСанкт-Петербург
Россия
Сколько будет стоить дом 3-114 с доставкой в Великий Новгород
04.03.2009НатальяВеликие Луки
Россия
Здравствуйте! Хочу у Вас поинтересоваться- сколько будет стоить проект 3-114 с доставкой и сборкой в Великие Луки? Большое спасибо
06.02.2009ПавелГаврилов Ям
сколько стоит этот дом ????
30.01.2009РоманЯрославль
какова стоимость этого дома(установка срубана мой фундамент) с доставкой в Ярославскую область? Заводите ли вы дома под крышу и если да то укажите стоимость.Спасибо
25.01.2009ЮрийТАГАНРОГ
РОССИЯ
Стоимость проекта 3-114 с установкой под ключ в г.Адлере.h-2,5м
08.01.2009ДмитрийПереславль-Залесский
Россия
Здравствуйте. Подскажите, сколько будет стоить проект 3-114 без внутренних перегородок(только сруб и крыша) с доставкой и сборкой в город Переславль-Залесский Ярославской области. Спасибо!
06.01.2009МагомедМахачкала
Россия
Здравствуйте. Хотелось бы узнать сколько будет стоить проект 3-114 с доставкой и сборкой в город Махачкала
Copyright 2000 ООО МСК "Северное Зодчество" Если вы заметили ошибки на сайте, сообщите пожалуйста администратору. Вверх