АРХАНГЕЛЬСКАЯ СТРОИТЕЛЬНАЯ КОМПАНИЯ СЕВЕРНОЕ ЗОДЧЕСТВО
крупнейшая в России в области деревянного ручного домостроения и признана лучшей компанией по качеству строительства независимыми российскими и зарубежными экспертами.
Наш телефон: +7 921 490 37 37
На главную    Наши контакты    Поиск

НАШИ ПРОЕКТЫ

ПРОЕКТ 3-142


ПРОЕКТ 3-182


ПРОЕКТ 3-185


ПРОЕКТ 3-187


ПРОЕКТ 3-123


ПОСЛЕДНИЕ ПРОЕКТЫ

ПРОЕКТ 3-142


ПРОЕКТ 3-182


ПРОЕКТ 3-185


ПРОЕКТ 3-187


ПРОЕКТ 3-123


СЛУЧАЙНЫЕ ПРОЕКТЫ

ПРОЕКТ 3-05


ПРОЕКТ 2-245


ПРОЕКТ 3-101


ПРОЕКТ 3-33


ПРОЕКТ 3-40


ПРОЕКТ 2-04


ПРОЕКТ 3-120


ПРОЕКТ 3-262


ПРОЕКТ 2-234


ПРОЕКТ 3-263


ПРОЕКТ 3-261


ПРОЕКТ 3-110


ПРОЕКТ 3-65


ПРОЕКТ 3-144


ПРОЕКТ 3-24
 
ПАПКА
для хранения проектов

Проектов в папке: 0



ИНФОРМАЦИЯ

Стоимость домов в комплектации "Сруб" (дом студия - один этаж рубленный, второй мансардный) от 89 EUR за 1 кв.м. При выборе дома просим учитывать, что стоимость конструкции увеличивается, если увеличивается количество материала в самом доме.

Стоимость дома зависит от количества рубленных внутренних перегородок, диаметра бревна, высоты рубленных стен, сложности конструкции.  

ПРОЕКТ 1-08

ОПИСАНИЕ ПРОЕКТА
Баня
1 этаж
С мансардой

Общая площадь*
190.9 м²


Рейтинг: (4.60)

ВСЕ ФОТОГРАФИИ ПРОЕКТА

Проекты скачать!         комплектация!!!     сборка домов в любом регионе России  УВЕЛИЧИТЬ ИЛИ УМЕНЬШИТЬ ПЛОЩАДЬ ЭТОГО ДОМА, ПРОСТО! 

ЭТОТ ДОМ МОЖНО ПОСТРОИТЬ В ЛЮБОЙ СТРАНЕ!!!        

При заказе дома мы возвратим Вам всю сумму потраченную за проект!!!

Данный проект запрещается копировать, изменять и размещать на других сайтах, использовать в коммерческий целях, а так же использовать в частной застройке без разрешения компании в любой его модификации. Все проекты защищены!

Уже более 300 проектов на сайте

Мы производим самое безопасное жилье для человека, заботьтесь о своем здоровье вместе с нами.  

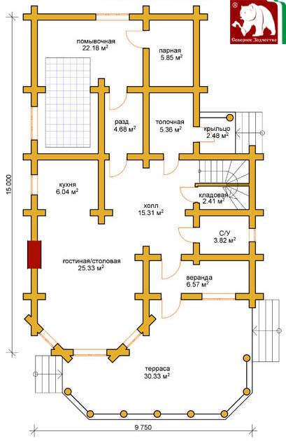
План 1 этажа
ПРОЕКТ 1-08 - План 1 этажа
План мансарды
ПРОЕКТ 1-08 - План мансарды
ОЦЕНИТЕ ПРОЕКТ
ОТЛИЧНО!
ХОРОШО
СРЕДНЕ
ПЛОХО
ОЧЕНЬ ПЛОХО
ОЦЕНИТЬ
Выскажите свою идею компании "Северное Зодчество"
Я предлагаю вам...
Отправить идею
Благодарим Вас!
Приняв участие в опросе, Вы внесли личный вклад в развитие
Российской производственной компании
Уже высказано идей:
1
Куда убрали пение птиц? Раньше было лучше, когда на сайте пели птицы.
Добавить архитектуру разных стран, например английская, норвежская и т.п.
Добавить осмотр помещений изнутри, для визуального представления пространства.
Добавить малые архитектурные формы: беседки, лавочки, у вас их мало.
Неплохо бы фотографии, присылаемые нам, клиентам, по фотоотчету, размещать на сайте по датам и заказчикам.
Задайте вопрос менеджеру.
Простая форма для быстрой отправки
E-mail или телефон для обратного ответа:
Отправить
Благодарим за Ваш запрос!
ООО Международная строительная компания "Северное Зодчество"
ПРЕСС-СЛУЖБА.
Информация для Заказчиков 14.02.2018Информация для Заказчиков

По многочисленным просьбам наших потенциальных Заказчиков, для экономии их времени, мы начинаем выполнять расчёты наших проектов в разной степени полноты комплекта. Выкладывать одну стоимость «от 199000 рублей» малоинформативно и мы постарались раскрыть подробно, что именно Заказчик получит в той или иной комплектации. Минимальная комплектация «СРУБ» включает в себя изготовление бревенчатой части сруба. Для наших клиентов мы предлагаем возможность оставить сруб на некоторое время на ответственное хранение. Например, в тех случаях, когда погодные условия не позволяют оперативно изготовить фундамент. «СРУБ С МОНТАЖЕМ» рекомендуется тем, кто планирует качественную сборку сруба профессиональными мастерами, в то же время, имея свои возможности по возведению стропильной системы. Комплектация «СРУБ ПОД УСАДКУ» включает в себя стропильную систему, т.е. Ваш сруб будет закрыт от осадков. Всегда можно пересмотреть комплектацию по желанию Заказчика и выполнить поставку тех или иных материалов для монтажа силами Заказчика. Например, в тех случаях, когда обрешетка не помещается по массе в одну из еврофур. Не везти же три кубометра досок через пол страны отдельной машиной. Мы были бы очень рады, если в качестве обратной связи могли бы получать Ваши пожелания по комплектациям на эту электронную почту: makarov@arkhangel.ru .Мы будем делать их более удобными для Вас.     «СРУБ»: 1.       Отборная сосна диаметром 220-240мм 2.       Острожка рубанком 3.       Русская чаша с выпуском 4.       Лунный паз, выборка теслом 5.       Антисептирование пазов и чаш «СРУБ С МОНТАЖЕМ»: 6.       Маркировка сруба 7.       Разборка и пакетирование 8.       Погрузка на поданный транспорт 9.       Сборка сруба на готовом фундаменте 10.   Врезка балок перекрытий 100х200мм 11.   Межвенцовый утеплитель в рулонах 8-10мм 12.   Нагели «СРУБ ПОД УСАДКУ»: 13.   Устройство стропильной  системы  из доски 50мм 14.   Обрешетка «дюймовкой» 15.   Гидроизоляция рубероидом 16.   Антисептирование «ДОМ ПОД ОТДЕЛКУ»: 17.   Настил кровли по выбору Заказчика 18.   Устройство скользящих обсадных  коробок  под окна и двери 19.   Устройство черного  пола  

Баня за 30 дней 24.01.2018Баня за 30 дней

Пока на площадке закладываются срубы нового сезона, пока они не набрали пригодной для фотографий высоты, поделимся одной симпатичной банькой, которую было необходимо возвести не только в достаточно сжатые сроки, но и в определенных условиях, усложняющих процесс строительства. Начнем с того, что на месте, где должна была встать новая банька, находилась старая, не соответствующая требованиям нового владельца участка. Завалена она была со всех сторон несколькими камазами старых сырых дров, так как о вентиляции в поленницах бывший владелец представления не имел. Проехать на грузовом транспорте до этой баньки было невозможно, так как участок был полностью благоустроен, а иных подъездных путей к месту застройки не имелось из за рельефа местности, окружающего участок. Расстояние от точки выгрузки до точки застройки составило порядка 100 метров. Масса одного бревна 200+ килограмм. Вишенкой на торте стал срок исполнения договора, ограниченный тридцатью календарными днями. И, тем не менее, у нас всё получилось. Результатом стало данное видео. https://youtu.be/gFQ-LEKmmzQ

Полностью завершен коттеджный посёлок 13.12.2017Полностью завершен коттеджный посёлок "Северная Швейцария"

Все работы в коттеджном посёлке "Северная Швейцария" завершены. Мы добились цели, поставленной несколько лет назад. Все коттеджи выполнены в единой архитектурной композиции в отличие от посёлков в центральных регионах, где поселки возводятся из разных материалов и в смешанной архитектуре. В коттеджном поселке «Северная Швейцария» все дома срублены в едином стиле из бревна архангельской сосны, исключительно из строганого бревна ручной обработки, но при этом абсолютно все дома имеют различную архитектуру.   "Северная Швейцария" стала нашей визитной карточкой, примером того, что мы не только говорим про дома под ключ, но и реально их производим. На посёлке нет ни одного проекта реализованного дважды. Все дома уникальны. В то же время нет ни одного проекта из типовых, так как мы идем навстречу пожеланиям каждого клиента и выполняем индивидуальное проектирование. Все прибывающий к нам гости-заказчики из иных регионов имеют возможность посетить данный посёлок, чтобы лично удостовериться в наших возможностях. В разделе "контакты" к Вашим услугам наши сотрудники, которые помогут организовать встречу и экскурсию.

Северный лес и никакой подделки! 04.02.2013Северный лес и никакой подделки!

Северный лес и никакой подделки!  Мы находимся в самом Архангельске, и дома мы рубим из настоящей Архангельской сосны! Это чудо природы произрастает вблизи белого моря.  Опасения людей действительно оправданы, ведь производители домов, практикующие строительство на участке клиента, завозят лес из Вологды, на лесовозах с архангельскими номерами. Вот до чего дошла подделка. Вологодский лес дешевле, и по качеству рядом не стоит с северным, ведь не зря царь Петр-1 строил тут свои корабли. Отличить простому человеку, откуда вырублен лес, практически невозможно.   Феномен леса - аномальный климат вблизи белого моря, очень мучает жителей города непогодой, ведь в Архангельске только шестьдесят дней в году бывает солнце, остальные дни пасмурно, идут осадки, а зимние сильные морозы просто замораживают соленое море, которое становится белым.  Но чем дальше от Архангельска, тем климат мягче и теплее. Например, уже в трехстах километрах от Архангельска, можно почувствовать себя на юге, а в самом Архангельске погоды может и не быть месяцами. По этому, не весь архангельский лес сам по себе уникален, ведь архангельская область по площади равна трем Франциям, и там есть крайний север с полярными ночами, вечная мерзлота и белые медведи, и юг, где растут яблоки. 

Посещаемость вебсайта компании превысило 30 миллионов человек 19.04.2012Посещаемость вебсайта компании превысило 30 миллионов человек

    Ежедневно сайт посещают более 15000 человек, иногда этот показатель бывает более 30000 человек в сутки, средняя посещаемость 2 человека в секунду. Программисты компании утверждают, хоть сайт содержит много визуального материала и для его стабильной работы необходимо более эффективное программное обеспечение, чем для новостных сайтов, тем не менее мощность серверов на данное время рассчитано и может выдержать посещаемость до 10 человек в секунду, поэтому, модернизация веб ресурса с учетом будущего увеличения посещаемости в ближайшие два года не потребуется. Напомним, сайт ежедневно посещают из 50 стран мира, количество клиентов компании постоянно растёт. Наиболее посещаемые страны Россия и Украина, самые посещаемые города Москва и Санкт- Петербург.

Новые запросы покупателей. Ваш запрос появится, если Вы использовали нижеприведенную форму запроса.
Вильгельм Кауц [Ашаффенбург/Германия]
21.09.2017
Интересует цена Проекта 3.187 И ещё, есть ли шансы доставки в Германию С уважением Вильгельм Кауц
Костадин Кесаров [Смолян/Болгария]
13.09.2017
Привет, сколько обойдется проекту 5-11 с транспортом и установкой в город Смолян, Болгария. Спасибо.
Костадин Танчев [Сандански/Болгария]
13.09.2017
Приветствую. У меня есть имущество площадью 12 340 квадратных метров, которое расположено на крупнейшем зимнем курорте на Балканах - Пампорово-Чепеларе (Болгария). У вас есть интерес к совместному бизнесу - путем строительства 20 деревянных домов.12 быть вашей собственностью, включая землю. Его можно продать или арендовать.Дальнейшее согласование условий.
Анна [Архангельск/Россия]
28.08.2017
Здравствуйте, скажите пожалуйста сколько стоит сруб проекта 1-1?
Анна [Архангельск/Россия]
28.08.2017
Здравствуйте, подскажите пожалуйста стоимость проекта под ключ 3-191? И остоимость готового сруба без сборки?
Ирина [Екатеринбург/Россия]
09.08.2017
Подскажите пожалуйста, стоимость дома по проекту 3-185. Заранее благодарю! Ответ, пожалуйста на эл. почту.
Дмитрий [Чудово/Россия]
29.07.2017
Подскажите пожалуйста примерную стоимость дома 3-184 с доставкой и сборкой
никита [красноярск/россия]
26.07.2017
Какова цена домокомплекта этой бани?
Marshall Blankenship [Anchorage]
25.07.2017
Hello, I am interested in 8 smaller cabins (perhaps 3-182) a chapel, bathouse and large main lodge for a development on the former site of a Russian-American Fur trading outpost in Alaska. Would love them to reflect Russian architecture and be very Russian as part of the charm of the development. Perhaps a barn and a gazebo as well. Would like to know a rough estimate in dollars delivered to Kodiak, Alaska Thanks
Олег [Правдинск/Россия]
18.07.2017
ПРОЕКТ 3-284 - стоимость под ключ в Калининградской области
Александр [Вилючинск/Россия]
17.07.2017
Здравствуйте, интересует проект дома 3-224. Подскажите цену комплекта дома.

ЗНАЕТЕ ЛИ ВЫ ЧТО БОЛЬШИНСТВО ЛЮДЕЙ В РОССИИ ЗАКАЗЫВАЮТ ПРОЕКТЫ ИМЕННО В НАШЕЙ КОМПАНИИ?  


Вы можете связаться с нами любым удобным вам образом.

Здесь вы можете задать нам вопрос по данному проекту
или отправить свое мнение
You can post a comment or ask a question about this project 
Ваше имя (Name) *E-mail (обязателен для вопроса)
Страна (Country) *Город (City) *
Заказать обратный звонок менеджера
Текст (не более 250 символов) (Text)
Какие изменения Вы бы сделали в этом проекте? (не более 500 символов)
(Is there anything you would like to change in this project?)

 *Ответы на сайте не публикуются, на все вопросы ответы присылаем индивидуально.

ЗАКАЗАТЬ ПРОЕКТ ОЧЕНЬ ПРОСТО! ДОСТАВКА ПРОЕКТА В ЛЮБУЮ СТРАНУ КУРЬЕРОМ! 

Возможен перевод проекта на другие языки. Просто отправьте форму со своими пожеланиями.

02.11.2015ОлегНадым
Россия
Добрый день. Интересует проект 1-08. Сколько стоит сам проект, сколько стоит сруб с монтажем и без монтажа? Какие сроки изготовления сруба и его монтажа?
27.02.2014МаринаСеверодвинск
Россия
Сколько стоит проект 1-08
12.05.2013ИгорьУльяновск
Россия
Скажите пожалуйста, сколько будет стоить баня по проекту 1-08 с доставкой до г. Ульяновска.
20.03.2013СергейКалининград
Россия
Подскажите стоимость проекта 1-08
21.07.2012АлександрМурманск
Россия
Здравствуйте? Какова стоимость бани проекта 1-08? Срок изготовления и поставки в Мурманск? Можно ли его слегка изменить (расширить метра на 2). Можете ли вы сделать его из кедра? И какова тогда будет его стоимость? Спасибо.
21.07.2012АлександрМурманск
Россия
Здравствуйте? Какова стоимость бани проекта 1-08? Срок изготовления и поставки в Мурманск? Можно ли его слегка изменить (расширить метра на 2). Можете ли вы сделать его из кедра? И какова тогда будет его стоимость? Спасибо.
28.03.2012СергейТольятти
Россия
Здравствуйте. Какова стоимость бани проект 1-08 с доставкой и сборкой в г. Тольятти Самарской обл.
24.08.2011юлияСанкт-Петербург
Россия
Сколько будет стоить "под ключ" баня по проекту 1-08 в санкт-петербурге?
30.05.2011ЮрийНижний Новгород
Подскажите пожалуйста стоимость сруба бани с черновой крышей, с фундаментом, с доставкой и установкой в Нижнем Новгороде, проект 1-09. Спасибо!
14.04.2011ИринаРостов на Дону
Россия
Сколько будет стоить баня проект1-08 , со сборкой под ключ в ростове на дону
07.09.2010AndrewAleksin
Russia
сколько будет стоить проект 1-08 в тульской области пригород города алексина.
10.06.2010АннаРостов-на-Дону
Россия
здравствуйте! сколько будет стоить сроительство в ростове (интересует ПРОЕКТ 1-08). вместе с доставкой
31.05.2010А.СысоеваВОРОНЕЖ
РОССИЯ
КАК УЗНАТЬ СТОИМОСТЬ ПОСТРОЙКИ ДАННОГО, ДР. СООРУЖЕНИЙ
28.03.2010АндрейBoston
USA
Добрый день.Возможна ли поставка в США и стоимость с учетом доставки? Возможно ли участие ваших специалистов в строительстве с превлечением местных строителей? Спасибо.
10.02.2010motto77Moscow
Russia
Здравствуйте. Сообщите цену строительства бани - Подмосковье - скажем так - в базовой комплектации, кризис...
09.02.2010ОлегМосква
Россия
сообщите цену в подмосковье на этот дом в подмосковье. как вы утепляете дом на случай рассыхания бревен и появления между ними щелей. делаете ли вы это сразу или приезжаете потом. в случае заключения договора в конец февраля, когда вы установите этот дом? где можно в московской обсласти посмотреть образец такого строения?
08.01.2010григорийНовосибирск
Россия
Во сколько обойдется постройка данного дома (материалы, доставка, монтаж) в Новосибирске, Цена проекта под ключ?
15.11.2009женямосква
росссия
Cколко стоит проект бони из оцелиндрованного бревна 10х7 двух этажной с мансардой и чердаком? С разводкой водоснабжения и рекомендациями по утеплению?
23.08.2009ЮрийАлександров
РФ
Добрый день! интересует стоимость сруба с доставкой и установкой во Владимирской обл. Строганное или оцилиндровка? Диаметр? Спасибо.
21.08.2009ЯнНижний Тагил
Россия
13 августа АННА спрашивала по цене проекта 1-08 для Екатеринбурга. Пожалуйста, продублируйте ответ (по цене, сборке и т.д.) для меня (живу под Ек-бургом, поэтому разница, думаю, будет минимальная).
13.08.2009АннаЕкатеринбург
Россия
1-08 Здравствуйте.Подскажите, пожалуйста, цену этого проекта с доставкой в Екатеринбург и сборкой под ключ. Входит ли в эту стоимость строительство фундамента или только монтаж сруба на готовый фундамент? Если это возможно, указать отдельно все статьи сметы: стоимость самого дома, фундамента, доставки, сборки и т.д.
03.08.2009АлександрМосква
Россия
Сколько будет стоить строительство этой бани 1-08 в Московской области?
29.07.2009КириллМосква
РФ
Скажите, пожалуйста, сколько будет стоить эта баня (шикарный дом?) под ключ в подмосковье?
08.07.2009НадяГап
Франция
Добрый день! сколько стоит эта баня? и доставка во францию?
01.07.2009Vladimir 74миасс
Россия
Во сколько обойдется постройка данного дома (материалы, доставка, монтаж) в Челябинске, Цена проекта под ключ?
22.04.2009иванмосква
россия
Стомость под ключ? Сроки?
11.04.2009Аминов РусланСтаврополь
Россия Ставропольский край
Пожалуйста, сообщите стоимость проектов 3-188,1-08
10.04.2009ЮрийТюмень
Россия
Во сколько обойдется постройка данного дома (материалы, доставка, монтаж) на участке под Тюменью? Цена проекта под ключ?
25.03.2009Maria KozlovaMoscow
Russia
Сколько будет стоить проект с досдавкой в Тверскую область Пожалуйста, дайте отельно цены на сруб из разного диаметра бревна, сборку , доставку. С уважением, Мария
23.02.2009АндрейЧелябинск
Россия
Подскажите, пожалуйста, цену этого изделия в бревне 24-28 с доставкой до Челябинска. Заранее благодарен, Онищенко Андрей.
14.02.2009АндрейЧелябинск
Россия
Очень понравилась банька! Отличное допонение к проекту "Олигарх". Вопрос: во что обойдётся мне эта красота в бревне 24-28 с доставкой до Челябинска?
06.02.2009АлексейСочи
объем базов комплектации, цена со сборкой и без , бревно сосна 240 мм , транспорт наш
23.10.2008ТатьянаПодольск, Московской
Россия
Очаровательный проект, шедевр!!! Я с удовольствием согласилась бы жить в такой бане.
14.10.2008sergeydublin
ireland
och interesnij proekt . skol'ko budet stoit' pod kluch , i mozno li vnosit' svoi neznachitel'nie korektirovki vproekt..?
08.10.2008Александра
Да можно жить в такой бане! :-)
03.07.2008Наташа
Чудесный проект!
30.06.2008Винсонт
А сколько стоит пастройка такого домика???
30.06.2008Васек
Вот это банька! У меня дача попроще будет!
Copyright 2000 ООО МСК "Северное Зодчество" Если вы заметили ошибки на сайте, сообщите пожалуйста администратору. Вверх